COMING SOON - CHAMPEL - Appartement familial de 7 pièces
Genève
Description
Référence:
AGE-3902-P
Pièces:
7
Nb de salles de bain:
3
Nb de chambres:
3
Vue:
Parc
Style:
Classique
État:
Bon
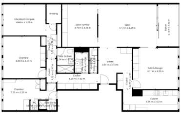
Surface PPE:
187 m2
Description
Appartement traversant de 187 m², calme, lumineux, avec vue sur parc, deux salons, cuisine Bulthaup et loggia de 10 m².
Trois chambres dont deux en suite, prestations de qualité et deux parkings en sous-sol.
Proche écoles et transports, bien rare à Champel.
Adresse
1206 Genève
Prix sur demande
Agent immobilier
Guive Emami, MRICS
E-mail
guive@gary.ch
Téléphone
078 689 06 86
Contactez le courtier
Biens similaires